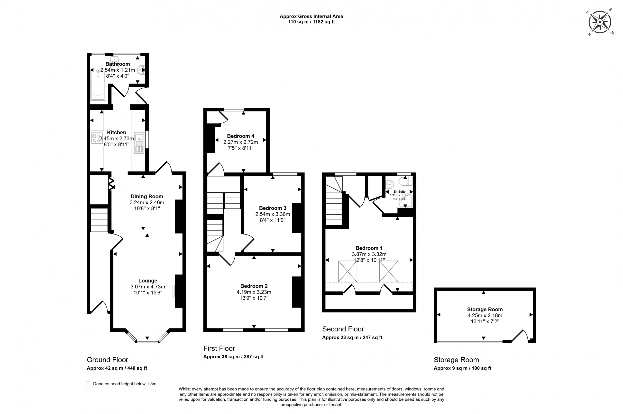
A period terraced property arranged over three floors with a wealth of spacious accommodation on offer. This family home is offered in immaculate condition both internally and externally and offers plenty of living and entertaining space. The accommodation comprises a large through lounge, fully fitted kitchen and a downstairs bathroom. The first floor offers three bedrooms and a large landing which provides stairs to a further bedroom with an en suite. Situated for easy access to local amenities and public transport links.

