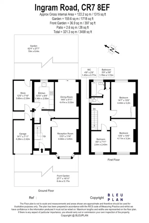
A semi-detached property offered for sale with no onward chain requiring full modernisation with the accommodation currently comprising three bedrooms with a lounge and dining room, kitchen and bathroom with separate WC.
The property is situated on a good size plot with a gated drive leading to garage with lean-to to rear, an enclosed front garden and large garden to rear.
Call now to view.

