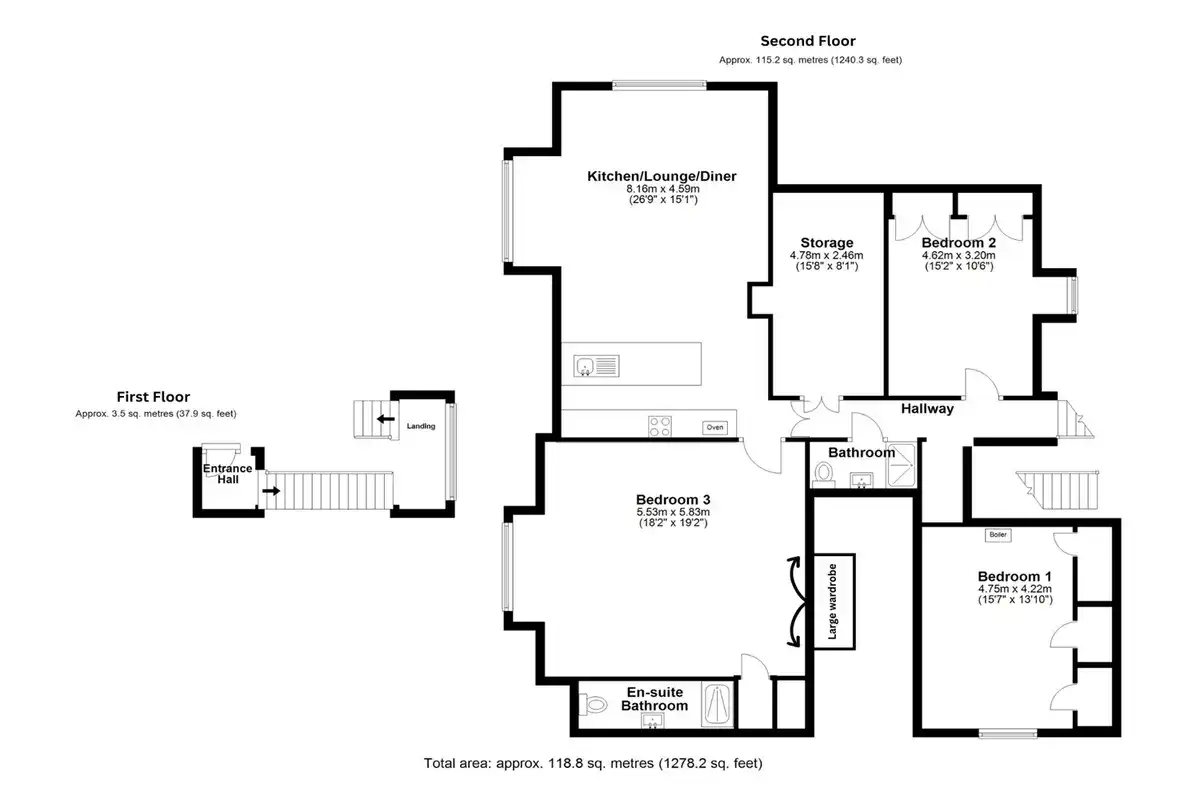
A stunning top floor apartment forming part of this imposing detached, period property benefitting from tall ceilings and very large rooms allowing light to flood into the property.
This conversion flat is situated close to Lloyd Park with it's wide open spaces and transport links and has been completely refurbished throughout to a very high standard and comes with share of the freehold, off street parking and a share of the garden.
The spacious accommodation on offer comprises an entrance hall with impressive staircase leading to three large double bedrooms with the master having an en-suite shower room/WC. There is also a very spacious open plan reception room to kitchen with ample space for dining with a further shower room/WC.
Outside there is a gravelled drive and parking to front with an enclose garden to rear.
